2 Bedroom
2 Bathroom
1072 sqft
Acreage
$391,147
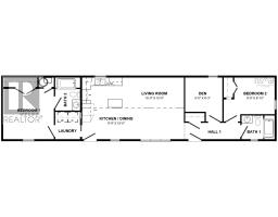
Welcome to this stunning brand-new 16 x 67 Citadel home, perfectly situated on just over an acre of land in Upper Nine Mile Riveroffering the perfect blend of modern living and peaceful surroundings. With 1,072 square feet of beautifully designed space, this home features 2 bedrooms, 1 den, and 2 full bathrooms, ideal for families, professionals, or anyone seeking a relaxing retreat. The open-concept living area is bright and spacious, highlighted by soaring cathedral ceilings that enhance the homes airy, inviting feel. Located less than 20 minutes from all amenities and Highway 102, youll enjoy the tranquility of country living with convenient access to shops, restaurants, and commuting routes. Plus, with the opportunity to customize finishes and details, you can truly make this home your ownmodern comfort and rural charm perfectly combined. (id:39336)
Property Details
|
MLS® Number
|
202526521 |
|
Property Type
|
Single Family |
|
Community Name
|
Upper Nine Mile River |
|
Amenities Near By
|
Place Of Worship |
|
Community Features
|
School Bus |
Building
|
Bathroom Total
|
2 |
|
Bedrooms Above Ground
|
2 |
|
Bedrooms Total
|
2 |
|
Basement Type
|
None |
|
Construction Style Attachment
|
Detached |
|
Exterior Finish
|
Vinyl |
|
Flooring Type
|
Laminate |
|
Foundation Type
|
Concrete Slab |
|
Stories Total
|
1 |
|
Size Interior
|
1072 Sqft |
|
Total Finished Area
|
1072 Sqft |
|
Type
|
House |
|
Utility Water
|
Drilled Well |
Land
|
Acreage
|
Yes |
|
Land Amenities
|
Place Of Worship |
|
Sewer
|
Septic System |
|
Size Irregular
|
1.39 |
|
Size Total
|
1.39 Ac |
|
Size Total Text
|
1.39 Ac |
Rooms
| Level |
Type |
Length |
Width |
Dimensions |
|
Main Level |
Bath (# Pieces 1-6) |
|
|
6X10 |
|
Main Level |
Bedroom |
|
|
12.3X12.2 |
|
Main Level |
Bedroom |
|
|
9.9X8.10 |
|
Main Level |
Den |
|
|
9X8.3 |
|
Main Level |
Eat In Kitchen |
|
|
9.9 X 15 |
|
Main Level |
Living Room |
|
|
15X15 |
|
Main Level |
Bath (# Pieces 1-6) |
|
|
4X6 |
https://www.realtor.ca/real-estate/29028149/2-indian-road-upper-nine-mile-river-upper-nine-mile-river