3 Bedroom
2 Bathroom
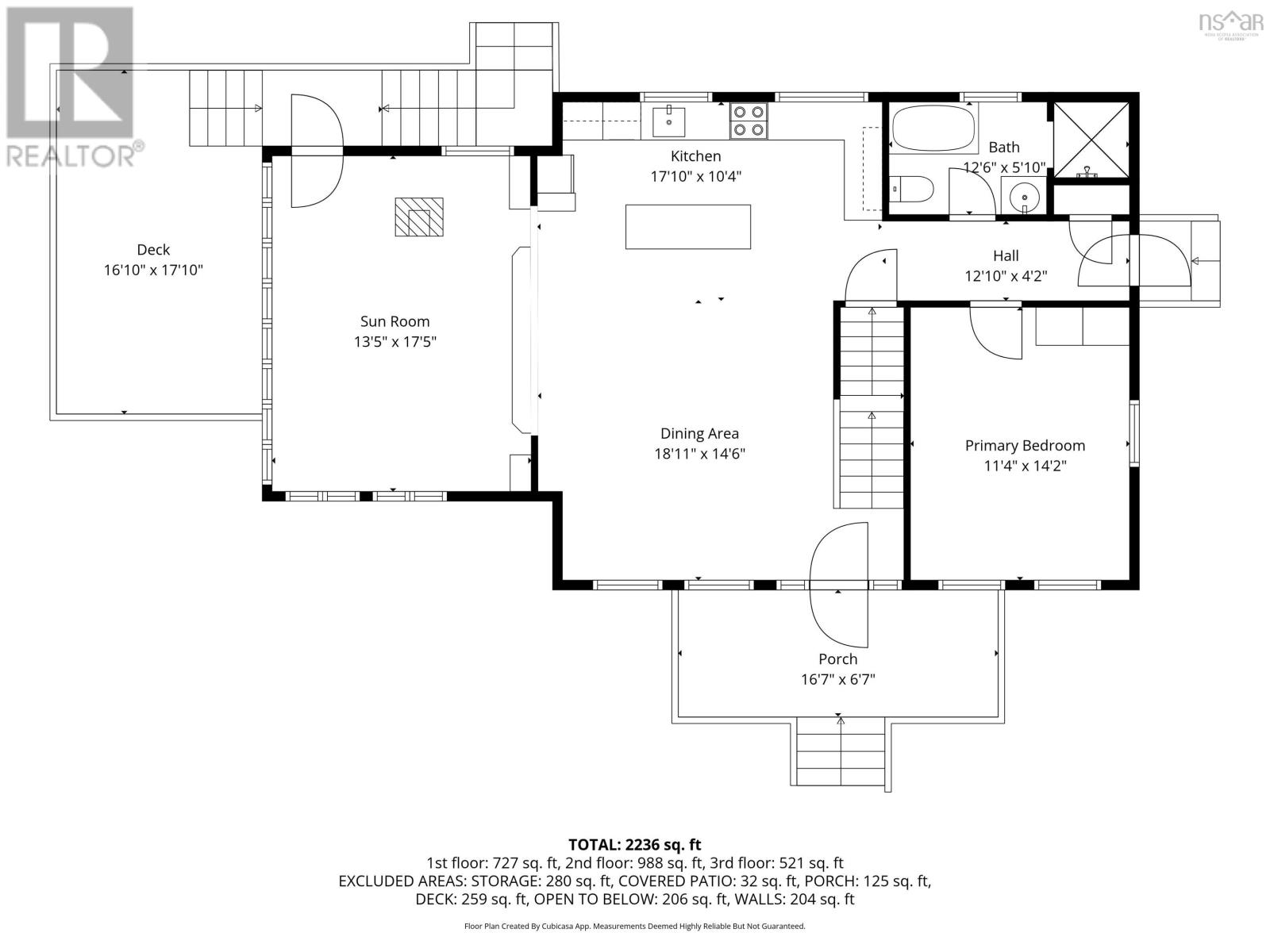
2236 sqft
Heat Pump
Acreage
Landscaped
$995,000
Thich Nhat Hanh suggests that reincarnation, or rebirth, is shaped by our thoughts, speech and actions which form our true 'continuation' In fact, rebirth and continuation inform the story of this house. The bones of a 19th century cape with its solid beams and timbers together with old floorboards, doors and 'things that had lived a little' were moved to the selected hilltop building site overlooking the islands and waters of Mahone Bay. The owners, passionate about old houses along with the designer, well known for breathing new life into old things, collaborated to produce a home of lyrical, hard to place peaceful ambience. The wide board plank floors, rustic exposed beams and the careful re-use and salvage of materials from across the province are contrasted and complimented by the 'new' sunroom with its vaulted ceiling and warm natural light. Functional features include the open concept living area with principle bedroom and bath on the main level... guest bedrooms are on the second floor and the walkout basement includes an office, den and storage area. Outside, the slate walkways and private gardens have been a labour of love, well planned yet natural and casual and professionally maintained over the years. Here, the beguiling ocean views never disappoint and a lovely sand beach is within easy walking distance. Antique or modern? No matter, its just feels right and this one of a kind property now patiently awaits new stewardship continuation for those so inclined. (id:39336)
Property Details
|
MLS® Number
|
202605874 |
|
Property Type
|
Single Family |
|
Community Name
|
Maders Cove |
|
Equipment Type
|
Propane Tank |
|
Features
|
Sloping |
|
Rental Equipment Type
|
Propane Tank |
|
Structure
|
Shed |
|
View Type
|
Ocean View |
Building
|
Bathroom Total
|
2 |
|
Bedrooms Above Ground
|
3 |
|
Bedrooms Total
|
3 |
|
Appliances
|
None |
|
Basement Development
|
Finished |
|
Basement Features
|
Walk Out |
|
Basement Type
|
Full (finished) |
|
Constructed Date
|
1985 |
|
Construction Style Attachment
|
Detached |
|
Cooling Type
|
Heat Pump |
|
Exterior Finish
|
Wood Shingles |
|
Flooring Type
|
Wood, Tile, Vinyl |
|
Foundation Type
|
Poured Concrete |
|
Half Bath Total
|
1 |
|
Stories Total
|
2 |
|
Size Interior
|
2236 Sqft |
|
Total Finished Area
|
2236 Sqft |
|
Type
|
House |
|
Utility Water
|
Drilled Well, Well |
Parking
Land
|
Acreage
|
Yes |
|
Landscape Features
|
Landscaped |
|
Sewer
|
Septic System |
|
Size Irregular
|
1.8607 |
|
Size Total
|
1.8607 Ac |
|
Size Total Text
|
1.8607 Ac |
Rooms
| Level |
Type |
Length |
Width |
Dimensions |
|
Second Level |
Bedroom |
|
|
11.1 x 10.9 |
|
Second Level |
Bedroom |
|
|
12.5 x 12.2 |
|
Second Level |
Den |
|
|
11.4 x 18.7 |
|
Second Level |
Bath (# Pieces 1-6) |
|
|
5. x 5.10-2pc |
|
Lower Level |
Storage |
|
|
14.8 x 19.1 |
|
Lower Level |
Recreational, Games Room |
|
|
26.8 x 24.9 |
|
Lower Level |
Den |
|
|
11.4 x 21.5 |
|
Lower Level |
Mud Room |
|
|
5.6 x 5.10 |
|
Lower Level |
Laundry Room |
|
|
8.11 x 3 |
|
Main Level |
Sunroom |
|
|
13.5 x 17.5 |
|
Main Level |
Kitchen |
|
|
17.10 x 10.4 |
|
Main Level |
Dining Room |
|
|
18.11 x 14.6 |
|
Main Level |
Bath (# Pieces 1-6) |
|
|
12.6 x 5.10-4pc |
|
Main Level |
Primary Bedroom |
|
|
11.4 x 14.2 |
https://www.realtor.ca/real-estate/29536207/400-maders-cove-road-maders-cove-maders-cove