4 Bedroom
2 Bathroom
3885 sqft
Fireplace
Wall Unit, Heat Pump
Acreage
Landscaped
$549,900
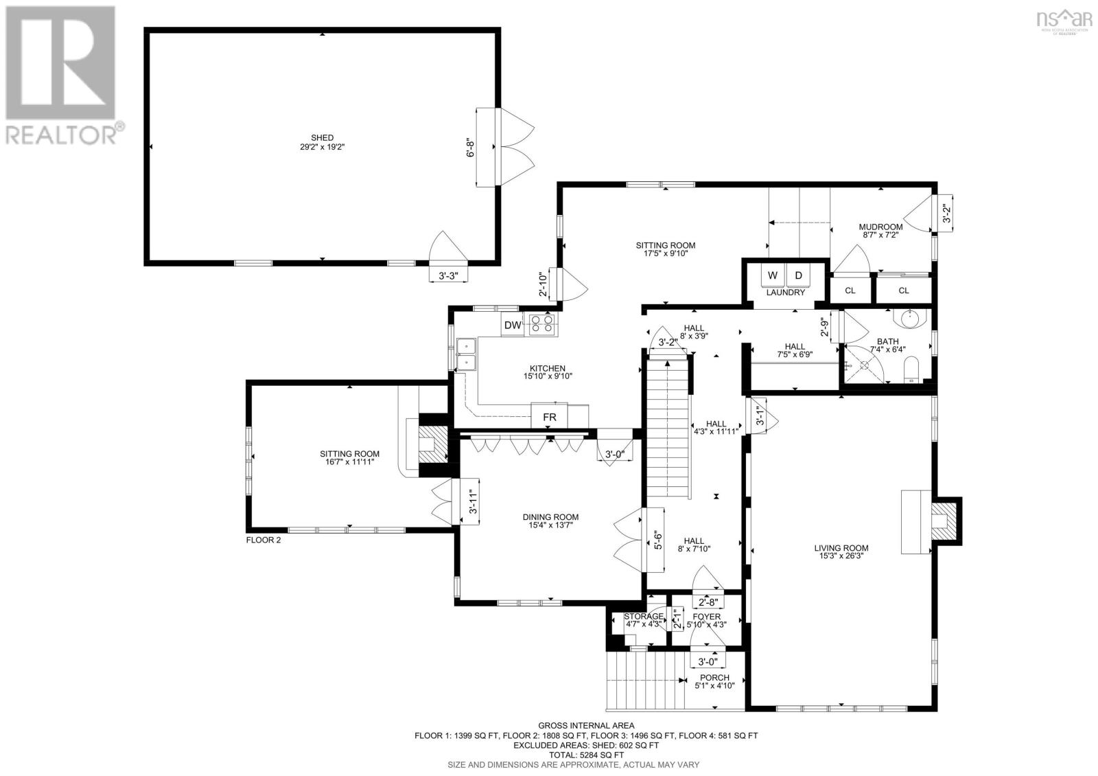
Discover timeless charm and historic elegance in this stunning 2.5-story home at 68 Cottage Street. Originally built in 1890 by the original owners of the renowned Pictou Shipyard and thoughtfully rebuilt in 1940, this residence offers a unique blend of heritage and modern comfort. Set on over one acre on a corner lot, the home features striking cedar siding with classic brick accents and lush ivy adorning the front facade. Towering linden trees surround the estate, creating a serene and picturesque setting in a highly desirable neighborhood. Step inside to experience spacious, light-filled interiors with huge hallways and original hardwood floors beneath the laminate wood coverings on the main floor. The home boasts four generous bedrooms, two full bathrooms, and two versatile attic rec rooms, plus a secret room accessed through one of the bedrooms! Three cozy fireplaces and original iron radiators provide warmth and character throughout. Original windows, complete with dual panels that swing open from the inside, preserve the home's historic charm while flooding rooms with natural light. The expansive great room features custom built-in library shelving, and the formal dining room impresses with a full wall of built-in cabinetryperfect for entertaining. French doors on the staircase landing lead outside, where a balcony is begging to be built. Additional highlights include a large detached garage, insulated and wired with a wood stove, and a converted side entrance mudroom with a pellet stove that opens to the kitchen, blending functionality and comfort seamlessly. Recent renovations include fresh plaster and paint throughout, preserving the home's character while ensuring a move-in-ready experience. (id:39336)
Property Details
|
MLS® Number
|
202607440 |
|
Property Type
|
Single Family |
|
Community Name
|
Pictou |
|
Amenities Near By
|
Golf Course, Park, Playground, Public Transit, Shopping, Place Of Worship, Beach |
|
Community Features
|
Recreational Facilities, School Bus |
|
Features
|
Treed, Balcony, Level |
|
View Type
|
Harbour |
Building
|
Bathroom Total
|
2 |
|
Bedrooms Above Ground
|
4 |
|
Bedrooms Total
|
4 |
|
Appliances
|
Oven, Dishwasher, Dryer, Washer |
|
Basement Development
|
Partially Finished |
|
Basement Type
|
Full (partially Finished) |
|
Construction Style Attachment
|
Detached |
|
Cooling Type
|
Wall Unit, Heat Pump |
|
Exterior Finish
|
Wood Shingles |
|
Fireplace Present
|
Yes |
|
Flooring Type
|
Ceramic Tile, Hardwood, Laminate, Vinyl |
|
Foundation Type
|
Poured Concrete, Stone |
|
Stories Total
|
3 |
|
Size Interior
|
3885 Sqft |
|
Total Finished Area
|
3885 Sqft |
|
Type
|
House |
|
Utility Water
|
Municipal Water |
Parking
|
Garage
|
|
|
Detached Garage
|
|
|
Gravel
|
|
|
Parking Space(s)
|
|
Land
|
Acreage
|
Yes |
|
Land Amenities
|
Golf Course, Park, Playground, Public Transit, Shopping, Place Of Worship, Beach |
|
Landscape Features
|
Landscaped |
|
Sewer
|
Municipal Sewage System |
|
Size Irregular
|
1.0573 |
|
Size Total
|
1.0573 Ac |
|
Size Total Text
|
1.0573 Ac |
Rooms
| Level |
Type |
Length |
Width |
Dimensions |
|
Second Level |
Bedroom |
|
|
14.4 x 13.5 |
|
Second Level |
Bedroom |
|
|
15.5 x 13.11 |
|
Second Level |
Bedroom |
|
|
12.7 x 13.6 |
|
Second Level |
Bedroom |
|
|
15.10 x 11.6 |
|
Second Level |
Games Room |
|
|
9.5 x 12.5 |
|
Second Level |
Bath (# Pieces 1-6) |
|
|
11.1 x 8.4 |
|
Third Level |
Recreational, Games Room |
|
|
27.7 x 13.3 |
|
Third Level |
Recreational, Games Room |
|
|
11.10 x 13.3 |
|
Main Level |
Foyer |
|
|
17.5 x 9.10 |
|
Main Level |
Kitchen |
|
|
15.10 x 9.10 |
|
Main Level |
Laundry Room |
|
|
7.5 x 6.9 |
|
Main Level |
Bath (# Pieces 1-6) |
|
|
7.4 x 6.4 |
|
Main Level |
Dining Room |
|
|
15.4 x 13.7 |
|
Main Level |
Great Room |
|
|
15.3 x 26.3 |
|
Main Level |
Den |
|
|
16.7 x 11.11 |
|
Main Level |
Porch |
|
|
5.10 x 4.3 |
|
Main Level |
Mud Room |
|
|
8.7 x 7.2 |
https://www.realtor.ca/real-estate/29607087/68-cottage-street-pictou-pictou