LOADING

Lot 13 Highway 4 Aulds Cove, Nova Scotia B0H 1P0

$27,500

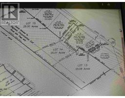
This 25.09 acre lot is located on No 4 Highway in Aulds Cove just 5 minutes from the Canso Causeway, the gateway to Cape Breton Island. The acreage is surveyed and migrated. There is a 20 FT wide Right of way Easement to Lot 13. Also a 33 FT wide right of way over Lot 14 leading from The Southwestern boundary of Old Highway #4. (id:39336)

Property Details

MLS® Number 202516362
Property Type Vacant Land
Community Name Aulds Cove
Features Treed

Building

Utility Water None

Parking

None

Land

Acreage No
Sewer No Sewage System
Size Irregular 0.0006
Size Total 0.0006 Ac
Size Total Text 0.0006 Ac

https://www.realtor.ca/real-estate/28548676/lot-13-highway-4-aulds-cove-aulds-cove

Interested?

Contact us for more information


Generating Captcha