LOADING

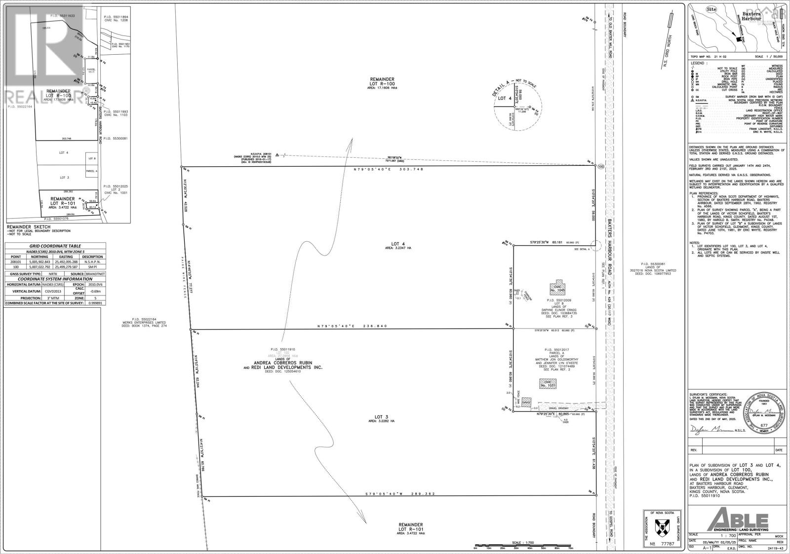
Lot 4 Baxters Harbour Road Baxters Harbour, Nova Scotia B0P 1H0

Acreage

$68,500

Prime opportunity to build your dream home or vacation retreat on this 8± acre treed and private lot in the highly desirable community of Baxter's Harbour, located in Nova Scotias scenic Annapolis Valleyfamous for its orchards, vineyards, and the dramatic tides of the Bay of Fundy. Enjoy nearby access to the picturesque hiking trails of Black Hole Falls and Baxter's Harbour Falls, as well as the luxurious new Salt Air Nordic Spa. This peaceful yet conveniently located property is just 15 minutes from the Town of Kentville and its amenities, 25 minutes from Wolfville and Acadia University, and close to valley farm markets and local wineries. All this, just 1 hour and 15 minutes from Halifax Stanfield International Airport, makes this a rare chance to own a piece of paradise in a highly sought-after coastal area of Nova Scotia. (id:39336)

Property Details

MLS® Number 202512735
Property Type Vacant Land
Community Name Baxters Harbour
Features Treed

Building

Utility Water None

Parking

None

Land

Acreage Yes
Sewer No Sewage System
Size Irregular 8
Size Total 8 Ac
Size Total Text 8 Ac

https://www.realtor.ca/real-estate/28385846/lot-4-baxters-harbour-road-baxters-harbour-baxters-harbour

Interested?

Contact us for more information


Generating Captcha